Merancang rumah minimalis tidak bisa asal-asalan, apalagi jika luas tanah terbatas. Tapi jangan khawatir, dengan perencanaan denah yang tepat, kamu tetap bisa memiliki rumah yang nyaman dan fungsional.
Disini, kita akan membahas beberapa inspirasi denah rumah minimalis, mulai dari ukuran 6x12 meter, hingga rumah dengan 3 kamar tidur yang tetap rapi tanpa terasa sempit. Simak informasinya disini:
Contoh Denah Rumah Minimalis 6x12
Ukuran tanah 6x12 meter adalah salah satu ukuran yang banyak ditemukan di perumahan urban. Meskipun tidak terlalu besar, kamu tetap bisa mendapatkan rumah 1 lantai yang lengkap, atau bahkan rumah 2 lantai yang nyaman dengan penataan ruang yang efisien. Berikut adalah inspirasi yang bisa kamu contek:
Denah Rumah Minimalis 6x15 Satu Lantai
Dengan luas tanah 6x15 yang dijadikan hunian satu lantai, kamu bisa membagi ruang-ruang pada denah rumah minimalis, sebagai berikut:
-
Ruang tamu dan ruang keluarga di bagian depan.
-
Dapur dan ruang makan di sisi tengah.
-
2 kamar tidur, masing-masing di depan dan belakang.
-
2 kamar mandi, diletakkan di dalam kamar dan juga di luar dekat kamar kedua.
-
Area laundry di belakang yang juga sekaligus digunakan untuk sirkulasi udara.
Dengan begitu kamu masih bisa mendapatkan privasi yang maksimal walau rumahmu berdiri di luas tanah yang terbatas.
Denah Rumah Minimalis 6x12 Dua Lantai
Jika kamu ingin lebih banyak ruang, maka denah rumah minimalis dua lantai bisa menjadi solusi yang paling pas. Lantai 1 bisa digunakan untuk:
-
Ruang tamu, dapur, dan ruang makan
-
1 kamar mandi
-
Taman belakang kecil
Sedangkan area lantai 2 bisa diisi dengan:
-
2 kamar tidur
-
2 kamar mandi
-
Ruang keluarga kecil
-
Balkon mini di bagian depan dan belakang
Model rumah ini akan sangat cocok untuk keluarga kecil atau pasangan muda yang membutuhkan ruang ekstra.
Denah Rumah Minimalis 3 Kamar yang Rapi
Memiliki 3 kamar dalamdenah rumah minimalis dengan luas tanah terbatas tentu tidak mudah, tapi juga bukan berarti tidak mungkin. Kuncinya ada di pembagian zona dan sirkulasi yang efisien. Berikut adalah beberapa inspirasinya:
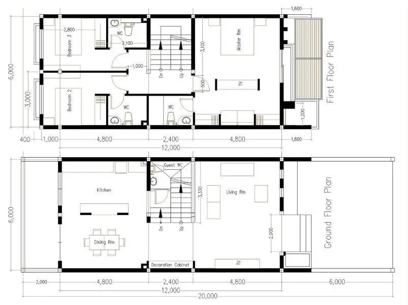
Denah Rumah 6x12 3 Kamar Tipe Linear
Denah rumah minimalis ini memaksimalkan tanah linear berukuran 6x12 sebagai hunian yang compact namun tetap nyaman. Tanah berbentuk linear ini biasanya cocok untuk rumah memanjang seperti pada denah, dengan detail ruangan sebagai berikut:
-
Ruang tamu di depan.
-
Dapur dan ruang makan di tengah.
-
3 kamar tidur disusun sesuai dengan kebutuhan.
-
2 kamar mandi di letakkan di dalam master bedroom dan di antara dua kamar.
Model ini juga cocok diterapkan untuk rumah tipe 6x15 atau 7x12 dengan proporsi ruangan yang lebih besar.
Baca Juga: 9 Inspirasi & Tips Rumah Minimalis Modern 1 Lantai & 2 Lantai Low Budget
Denah Rumah 3 Kamar L-Shape
Cocok untuk lahan sudut dengan area taman di bagian tengah, dengan detail ruangan sebagai berikut:
-
3 kamar tidur berada di belakang rumah
-
Dapur dan ruang keluarga menyatu di area depan
-
Kamar mandi bisa diakses dari dua sisi
Dengan konsep L-shape, kamu bisa menyisipkan taman mini di tengah rumah untuk pencahayaan alami dan udara segar.
Tips Agar Denah Rumah 3 Kamar Tetap Rapi
Rumah dengan 3 kamar akan menambah peluang hunian jadi lebih berantakan. Sehingga sebaiknya kamu mempertimbangkan tips berikut saat akan membangun hunian impian:
-
Hindari adanya lorong panjang yang kadang kurang fungsional dan menghabiskan ruang.
-
Gunakan partisi semi-permanen berupa sekat rotan atau rak pajangan agar ruangan tidak bertambah sempit.
-
Gunakan jendela besar agar ruang kecil terasa terang dan lega.
-
Sediakan ventilasi silang di setiap kamar untuk sirkulasi udara optimal yang menambah kenyamanan.
Pentingnya Zonasi dalam Denah Rumah Minimalis
Dalam rumah minimalis, pembagian zonasi jadi tahapan yang sangat penting. Pembagian ini membuat tiap area punya fungsi yang jelas dan posisinya bisa disesuaikan berdasarkan aktivitas. Berikut adalah 3 jenis zona yang biasanya ada dalam rumah:
-
Zona publik: tempat berkumpul dengan orang lain ruang tamu, ruang makan
-
Zona semi-privat: ruang keluarga
-
Zona privat: kamar tidur, kamar mandi
Dengan zonasi area yang baik, rumah akan terasa lebih teratur dan nyaman. Selain itu, zonasi juga memudahkan sirkulasi udara dan cahaya alami agar rumah tidak lembab.
Merancang denah rumah minimalis memerlukan perencanaan yang matang, terutama saat kamu ingin memaksimalkan fungsi dalam lahan terbatas.
Baik itu denah rumah ukuran 6x12 maupun rumah dengan 3 kamar tidur, yang terpenting adalah efisiensi ruang, pencahayaan alami, dan ventilasi yang baik.
Gunakan pula furniture berkualitas pada interior rumah, seperti Furniture Besi Olymsteel yang estetik dan tahan dari generasi ke generasi. Koleksi lemari kabinet dan lemari TV Besi Brenda Series bisa jadi pilihan yang tepat buat rumah minimalismu.
Yuk, mulai rancang rumah impianmu dengan denah yang tepat, dan lengkapi dengan furnitur besi yang kokoh dari Toko Mitra Olymsteel terdekat agar rumahmu makin nyaman dan stylish setiap hari!






